Državne nekretnine daju u zakup poslovne prostore: U Osijeku u Kapucinskoj! Cijena?
U četvrtak, 22. prosinca 2021., raspisan je Javni poziv za podnošenje ponuda za zakup poslovnih prostora u vlasništvu Republike Hrvatske u Zagrebu, Osijeku, Splitu, Rijeci, Kastvu i Bjelovaru. Natječaj će biti otvoren do petka 28. siječnja 2022. do 12 sati, a termini za pregled prostora organizirani su u periodu od 17. do 21. siječnja – javljaju jučer priopćenjem medijima Državne nekretnine, čiji se cijeli natječaj može pronaći na njihovim mrežnim stranicama…
Šestim natječajem u 2021. Državne nekretnine d.o.o. daju u desetogodišnji zakup 30 državnih prostora na atraktivnim lokacijama. Prostori u nultim zonama, osim u Zagrebu, mogu se zakupiti i u Rijeci i Osijeku. Početna cijena zakupnine za prostor na riječkom Korzu je 181,60 kn/m2 dok je za prostor nedaleko konkatedrale u osječkoj nultoj zoni tri puta manja, a poslovni prostori u zagrebačkoj nultoj zoni na lokacijama Gundulićeva, Jurišićeva i Kamenita daju se u zakup s početnim zakupninama od 80-ak do 100-ak kn/m2 – nastavljaju…
Ponuditelji svoje ponude mogu dostaviti poštom na adresu: DRŽAVNE NEKRETNINE d.o.o., Planinska 1, Zagreb ili u pisarnicu Društva. Pravo na sudjelovanje na natječaju imaju pravne osobe, udruge i fizičke osobe s registriranim obrtom ili samostalnom profesionalnom djelatnošću, a pravo na sklapanje ugovora ostvaruje najpovoljniji ponuditelj koji je ispunio uvjete natječaja i ponudio najviši iznos zakupnine. Javno otvaranje ponuda po natječaju 6/21 održat će se 28. siječnja 2022. u Ministarstvu prostornoga uređenja, graditeljstva i državne imovine, Republike Austrije 14, Zagreb, u 13:30 sati – dodaje se, među ostalim, u priopćenju…
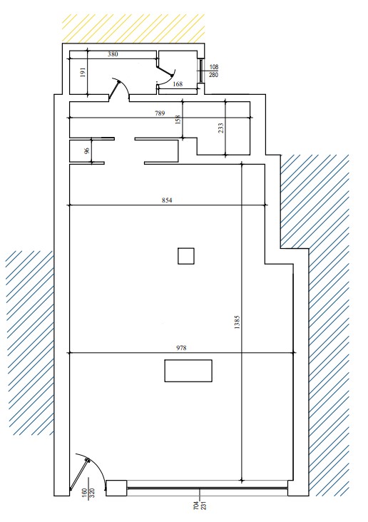
U Osijeku je to jedan lokal…
Adresa: KAPUCINSKA 44, Površina (m2): 157,79, Položaj nekretnine: prizemlje ulične zgrade, Početna mjesečna neto zakupnina (kn): 8.937,22, Jamčevina (kn): 26.811,66, Predložena djelatnost: sve djelatnosti dopuštene sukladno propisima, Razred oznaka en. certfikata: E/A, Datum i vrijeme pregleda poslovnih prostora: 18.01.2022. 11:00-11:30.
Foto: Državne nekretnine (screenshot)



